Bauten des Architekten Kai Jacobsen, Hamburg


Neubau EFH Einfamilienhäuser, MFH Mehrfamilienhäuser, Doppelhäuser, DH, DHH, Bürobauten, gewerbliche Bauten


Planung, Architektur, Baukonstruktion, Statik, Projektsteuerung, Bauleitung, Bauausführung


in Hamburg, Norddeutschland, Schleswig-Holstein, Niedersachsen, Bremen, Mecklenburg Vorpommern


Kiel, Flensburg, Rendsburg, Lübeck, Neumünster, Heide, Itzehoe, Pinneberg, Ahrensburg, Bad Segeberg, Bad Oldeslohe, Grevesmühlen, Schwerin, Wismar, Buchholz Nordheide, Soltau, Waldsrode, Lüneburg, Hitzacker

Bauaufgabe:

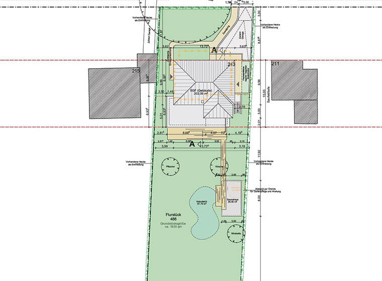
Neubau einer Stadtvilla mit Saunahaus und Naturteich (LPh 1-3)
Vollunterkellert, mit Einliegerwohnung

Bauort:

Hamburg Othmarschen

Größe:

ca. 450 m2 Wohnfläche

Realisierung:

Planung 2018